807 Cheryl Lane
Wilmington, NC 28405
Property Description
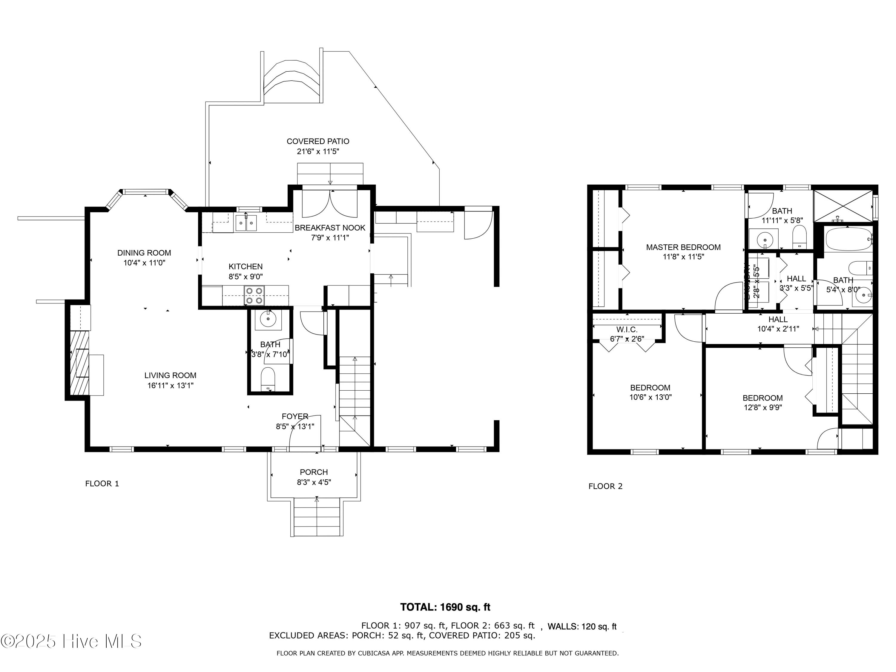
Welcome to your inviting two-story retreat, ideally located just minutes from UNCW, shopping, downtown Wilmington, ILM Airport, I-40, and Wrightsville Beach. This 3-bedroom, 2.5-bath home offers a wonderful blend of comfort, character, and outdoor charm in one of Wilmington's most sought-after neighborhoods. The traditional floor plan features distinct living, dining, and kitchen spaces—ready to enjoy as-is or modernize to fit your style. Upstairs, you'll find generously sized bedrooms, including a spacious primary suite with an en-suite bath and ample closet space. Abundant natural light fills the home, creating a warm and welcoming atmosphere throughout. Step outside to a covered back porch, perfect for morning coffee or evening gatherings. The private backyard is a peaceful escape, complete with a fire pit, cherry and fig trees, and plenty of green space for gardening, play, or relaxation. Additional highlights include a detached 16x20 garage and a 10x12 shed, offering excellent storage and space for hobbies or outdoor gear. Whether you're hosting friends around the fire or picking fruit from your own trees, this home combines location, livability, and opportunity—all in a neighborhood that puts the best of Wilmington right at your doorstep. With a new price, $2,500 in buyer closing cost incentive, this home is ready to welcome its next owner. Don't miss the opportunity to make it yours!
Property Details
Interested in this property?
Property Location
Wilmington, NC 28405