Residential
Active
1 / 11
6328 Wrightsville Avenue
Wilmington, NC 28403
$359,500
$230.74/sq ft
ID# 100532478
3 Bedrooms
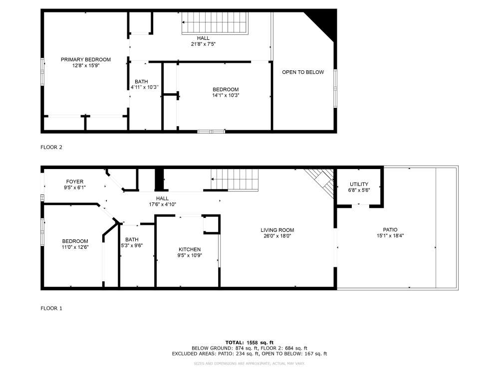
1,558 sq ft
Built 1996
Property Description
This 3-bedroom, 2-bath townhome in Hanover Place offers the ultimate in location and convenience. SHORT-TERM RENTALS are permitted, making this property a flexible investment opportunity. Only 1.7 miles to Wrightsville Beach, 3.2 miles to UNCW, and 1.5 miles to Mayfaire, you'll have easy access to work, school, shopping, and the coast. The floor plan features an open layout with one bedroom on the main level, two additional bedrooms upstairs, and a private patio out back — a great spot to enjoy your mornings or unwind in the evenings. Truly an awesome opportunity!
Property Details
Property Type Residential
Property Sub Type Townhouse
Status Active
List Price $359,500
List Date September 24, 2025
Lot Size 0.02 acres
Property ID 100532478
Interested in this property?
Property Location
Wilmington, NC 28403