2014 Klein Road
Wilmington, NC 28405
Property Description
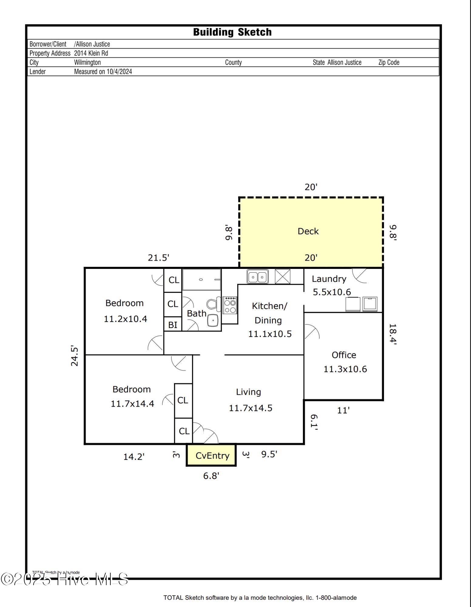
Charming 1942 home located in Wilmington's desirable Princess Place neighborhood, known for its historic character, tree-lined streets, and close proximity to the airport, downtown, shopping, and the riverfront. This property offers a unique opportunity for buyers looking to restore a home to its full potential. A licensed contractor has provided a quote for repair needs, and buyers are encouraged to conduct inspections to verify condition. Notable items: there is evidence of moisture intrusion in the laundry ceiling and hallway, which has led to potential fungal growth. Additional areas of concern include the bathroom window, which should be replaced with PVC, and the attic insulation. The yard also requires cleanup and landscaping. The current office/dining area is being used as a bedroom, with access available from both the living room and kitchen. With thoughtful updates, this home has potential to be transformed into a beautiful residence while preserving the charm and character of the neighborhood.
Property Details
Interested in this property?
Property Location
Wilmington, NC 28405