18981 Us 264 Highway
Pinetown, NC 27865
Property Description
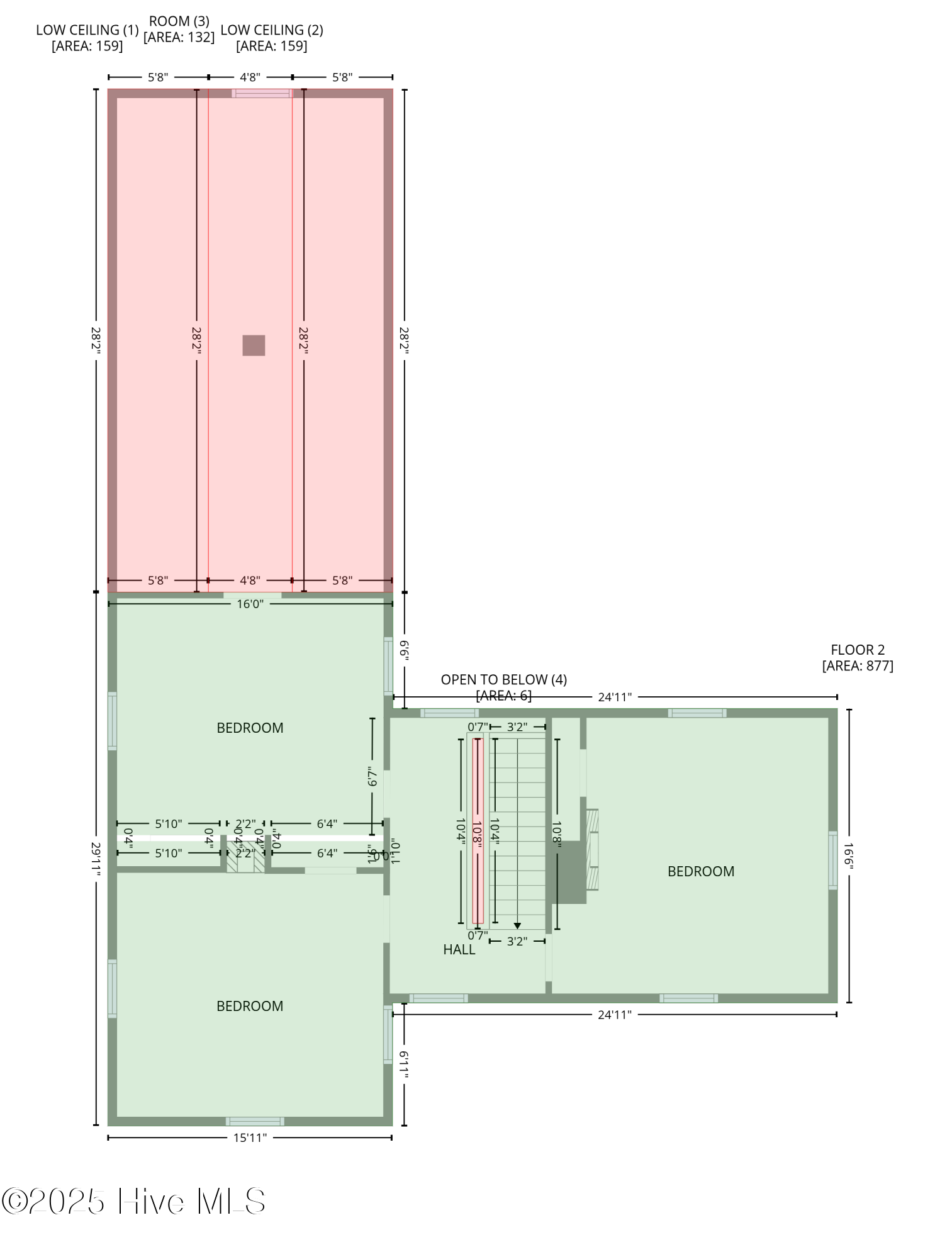
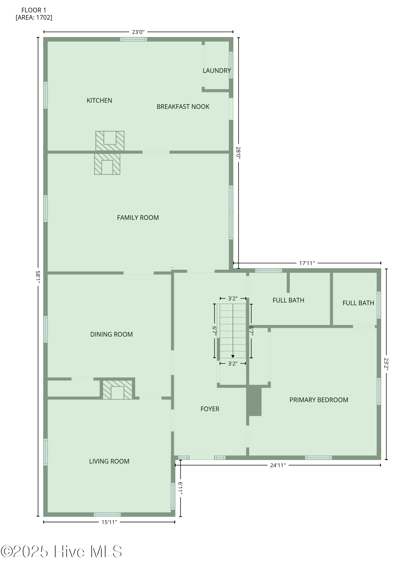
Historic 1921 Victorian Farmhouse - 1 Acre in the village of Yeatesville - Pinetown Discover the charm of a true classic with this 1921 Victorian farmhouse set on 1 acre with farm views. Known locally as the (Sam, Edna, & Martha) Robbins Home, built by Dr. & Mrs. M. L. Jackson. This 2-story, 2,600+ sq. ft. home offers 4 bedrooms, 2 full baths, and 10-ft ceilings. Special features include wood shake siding, a wrap-around porch, tongue-and-groove walls, and a kitchen fireplace, hardwood pine floors, herringbone pattern hardwood floor in foyer. The kitchen also offers updated cabinets, appliances, prep island, and breakfast area. A laundry closet with washer and dryer, plus a spacious walk-in attic, provide everyday convenience and storage. Comfort is provided by propane heaters and window A/C units, with pricing reflecting the opportunity to add a central HVAC system and updates to suit your vision. Extras include a 20' x 22' detached garage, Thermoglass windows throughout, and a termite bond in place. Just minutes from Historic Bath (7 mi), Belhaven (9 mi), and Washington (20 mi), with local schools nearby. A rare chance to own a piece of history and make it your own!
Property Details
Interested in this property?
Property Location
Pinetown, NC 27865