Property at 1006 Bonito Bend
Residential
Active
1 / 13

1006 Bonito Bend

New Bern, NC 28562

$461,000
$137.61/sq ft
ID# 100504684
4 Bedrooms
3,350 sq ft
Built 2025

Property Description

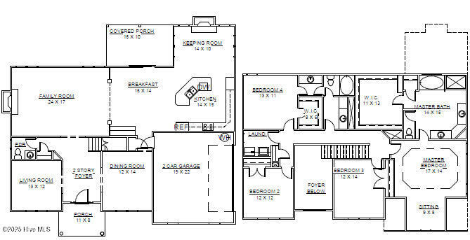
The ''Haley'' floor plan is nearing completion in the ''New'' Hutton Pointe PH II of Bluewater Rise. Builder offering $10,000 in buyers closing cost assistance w/ use of preferred closing attorney & lender. This 2-story floor plan features an impressive 2-story foyer entry flanked by a formal dining room & living room / office. Defined by it's open living areas, the ''Haley'' offers a large family room w/ gas log fireplace that opens to an eat-in kitchen w/ nook & keeping room w/ gas log fireplace. A large principles suite awaits you up stairs w/ sitting room and enormous private bathroom & walk-in closet. 3 secondary bedrooms and a laundry room round out the 2nd floor.

Property Details

Property Type Residential
Property Sub Type Single Family Residence
Status Active
List Price $461,000
List Date May 1, 2025
Lot Size 0.46 acres
Property ID 100504684

Interested in this property?

Property Location

New Bern, NC 28562