Property at 307 Lonesome Dove Court
Residential
Active
1 / 10

307 Lonesome Dove Court

Maysville, NC 28555

$334,900
$152.85/sq ft
ID# 100521564
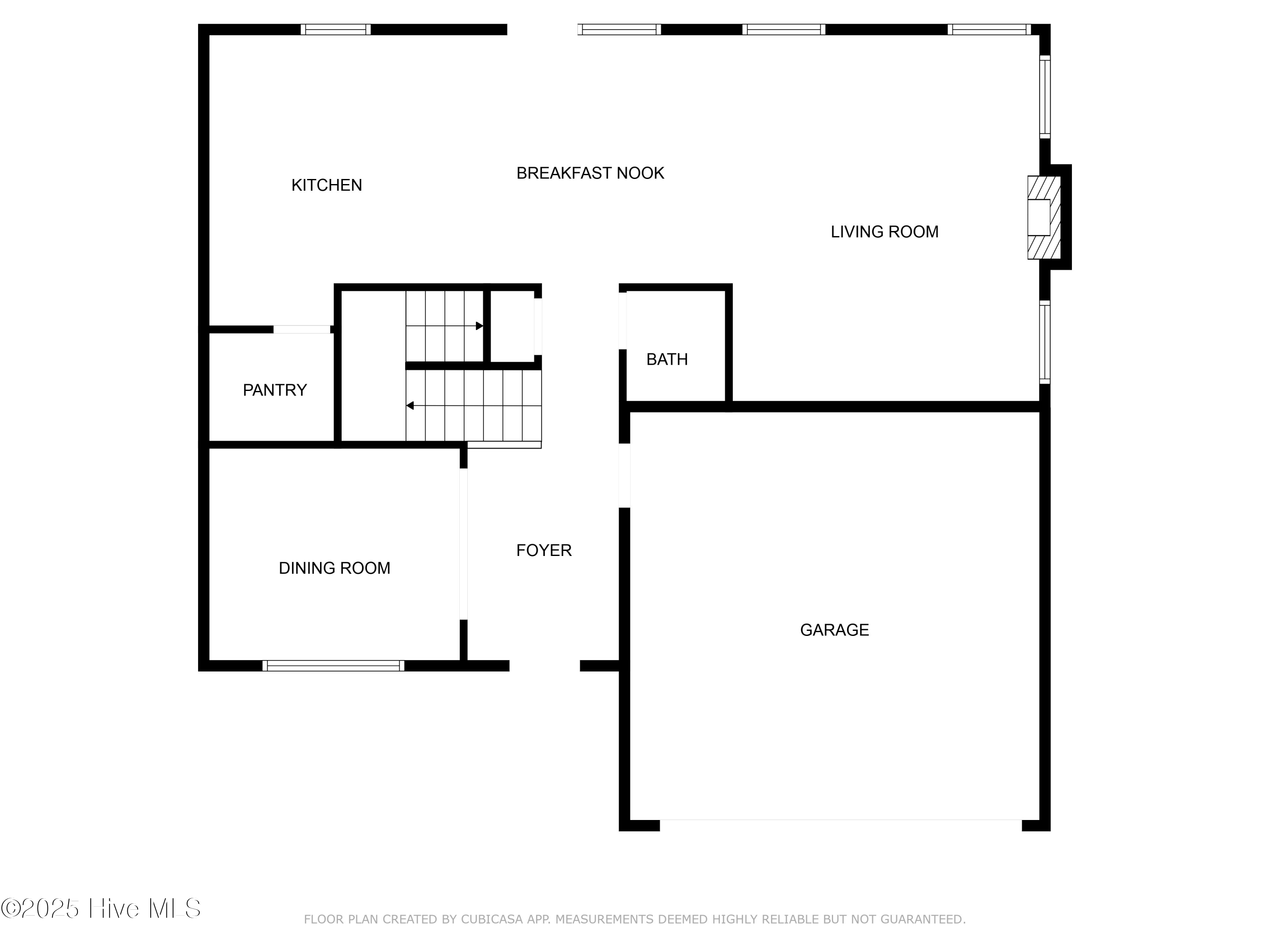
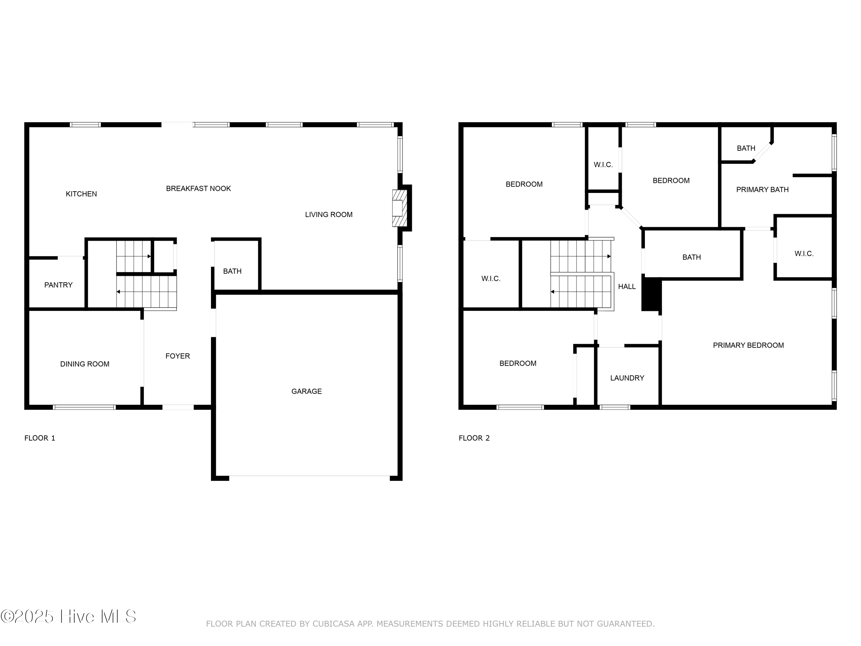
4 Bedrooms
2,191 sq ft
Built 2022

Property Description

Seller is offering 10k use as you choose! Welcome to this beautifully maintained 3-year-old home, perfectly situated at the end of a cul-de-sac on a spacious 0.66-acre lot backing up to a serene treeline. This stunning property features 4 bedrooms, 2.5 bathrooms, and a formal dining room ideal for entertaining. All bedrooms and the laundry room are conveniently located on the second floor for added privacy and functionality. Enjoy the outdoors with a covered patio, and take advantage of the wired 16x20 shed, perfect for storage or hobbies. Additional features include gutters and 30-amp generator wiring, offering peace of mind and convenience. Tucked away in the quiet back section of the neighborhood, this home offers both privacy and comfort—don't miss your chance to make it yours!

Property Details

Property Type Residential
Property Sub Type Single Family Residence
Status Active
List Price $334,900
List Date July 28, 2025
Lot Size 0.66 acres
Property ID 100521564

Interested in this property?

Property Location

Maysville, NC 28555