3032 Eno Lane
Leland, NC 28451
Property Description
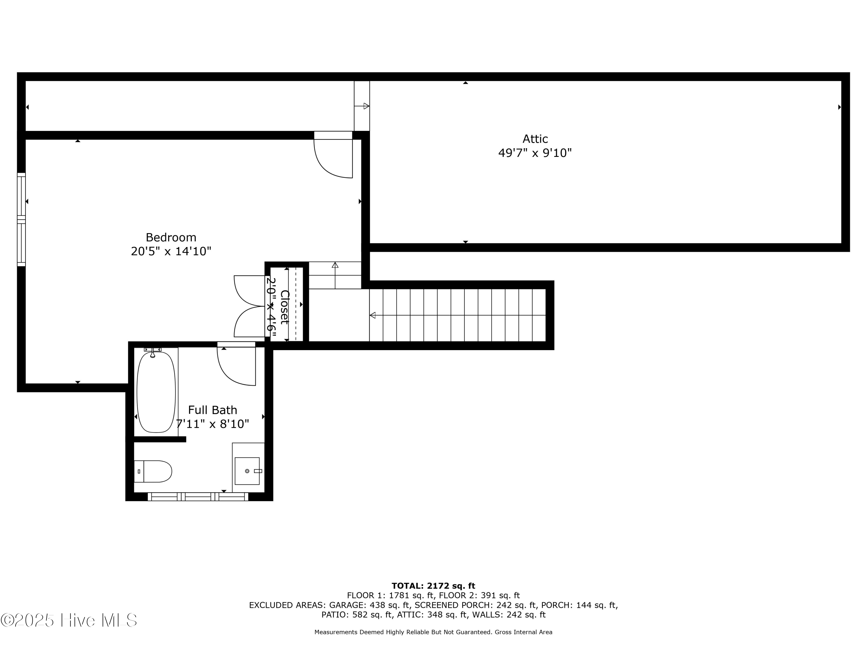
Welcome to exceptional living at 3032 Eno Lane, a custom-built home with three bed, three bath and dedicated office (optional 4th bdrm) in Brunswick Forest's highly sought after Park Landing community. An elegant foyer with judges panels draws you into a grand open-concept living area, where soaring 14-foot ceilings with exposed beams create a dramatic and inviting atmosphere. This space is perfect for entertaining, with built-in shelving and a gas fireplace, and flows seamlessly into a chef-inspired kitchen. Prepare gourmet meals with ease, surrounded by beautiful Quartz countertops and a spacious counter-height island. Tons of natural light enters through the abundant 6' windows throughout and the double sliding doors. Enjoy outdoor living on the generous screened-in porch, surrounded by custom plantings and crepe myrtles, with low-maintenance Hardie Plank siding and HOA-provided lawn care for stress-free enjoyment. PLEASE Note: Only a portion of the yard is fenced in but can be extended to property lines should you choose. This home is just a short trip from Brunswick Forest's world-class amenities, including pools, tennis, pickleball, walking/biking trails, with the private Cape Fear Golf Course surrounding the community. Just minutes to local shops and Brunswick County beaches. Don't miss out, call for a showing today!
Property Details
Interested in this property?
Property Location
Leland, NC 28451