Property at 206 Merin Height Road
Residential
Active
1 / 10

206 Merin Height Road

Jacksonville, NC 28546

$337,500
$147.51/sq ft
ID# 100525750
4 Bedrooms
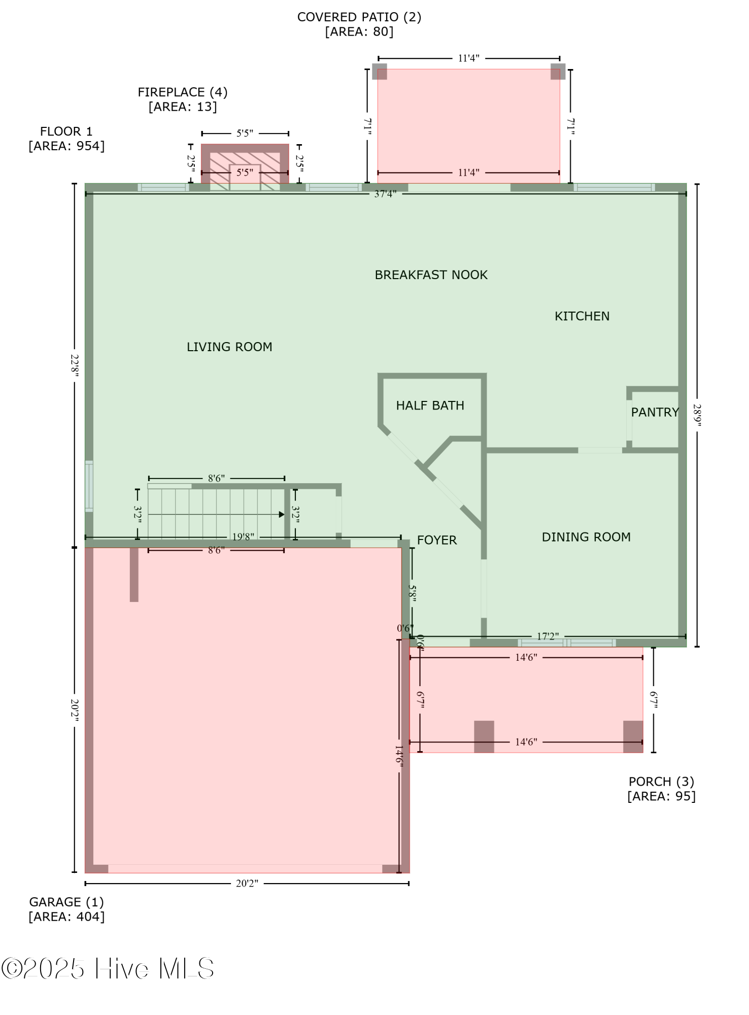
2,288 sq ft
Built 2011

Property Description

*** Seller offering $5000 use as you choose to the buyer*** Welcome to this beautiful 4 bedroom 2.5 bathroom home located in the highly desired neighborhood of Carolina Plantations! As you step inside this well-maintained home, you will be greeted with new LVP flooring throughout the formal dining room and living room and freshly painted neutral paint carried throughout the main level. You will love the large kitchen that features professionally repainted kitchen cabinets, stainless steel appliances, a large island, and is open to the living room. This spacious living room has a fireplace and is filled with tons of natural light. As you head upstairs you will find three spare bedrooms, a full bath, laundry room and the primary suite. The primary suite features a spacious walk-in closet, and an ensuite equipped with a double vanity, large soaking bathtub and separate walk in shower. Enjoy the convenience of city living with easy & quick access to local shopping, restaurants, & entertainment all without the city tax bill!! Call now to schedule your private tour today!

Property Details

Property Type Residential
Property Sub Type Single Family Residence
Status Active
List Price $337,500
List Date August 17, 2025
Lot Size 0.30 acres
Property ID 100525750

Interested in this property?

Property Location

Jacksonville, NC 28546