9262 Katharine Court
Calabash, NC 28467
Property Description
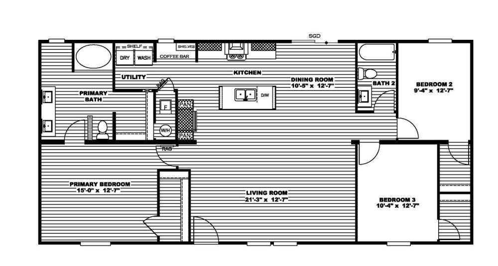
Approx 3 minutes to Sunset Beach NC! Discover your dream home in the desirable Sunset Beach area! This stunning, never-lived-in residence offers the perfect blend of comfort and convenience, featuring three spacious bedrooms and two modern bathrooms, all within nearly 1500 sq ft of well-designed living space. Nestled in a serene cul-de-sac, this property boasts a private concrete driveway, ensuring easy access and ample parking. Enjoy the coastal lifestyle with just a short drive out of the neighborhood and down one of the most scenic roads in Brunswick County (Shoreline Dr) to the pristine sugar-sand beach of Sunset Beach, where the sun and surf await. Located between the Calabash River and IntraCoastal Waterway, this home is ideal for those who love outdoor activities, fishing, boating and the beach. Don't miss your chance to own a slice of paradise in this charming community. *Owner is related to Listing Agent
Property Details
Interested in this property?
Property Location
Calabash, NC 28467