Property at 29 Hawkins Pass
Residential
Active
1 / 10

29 Hawkins Pass

Port Wentworth, GA 31407

$339,990
$210.39/sq ft
ID# SA331819
3 Bedrooms
1,616 sq ft
Built 2025

Property Description

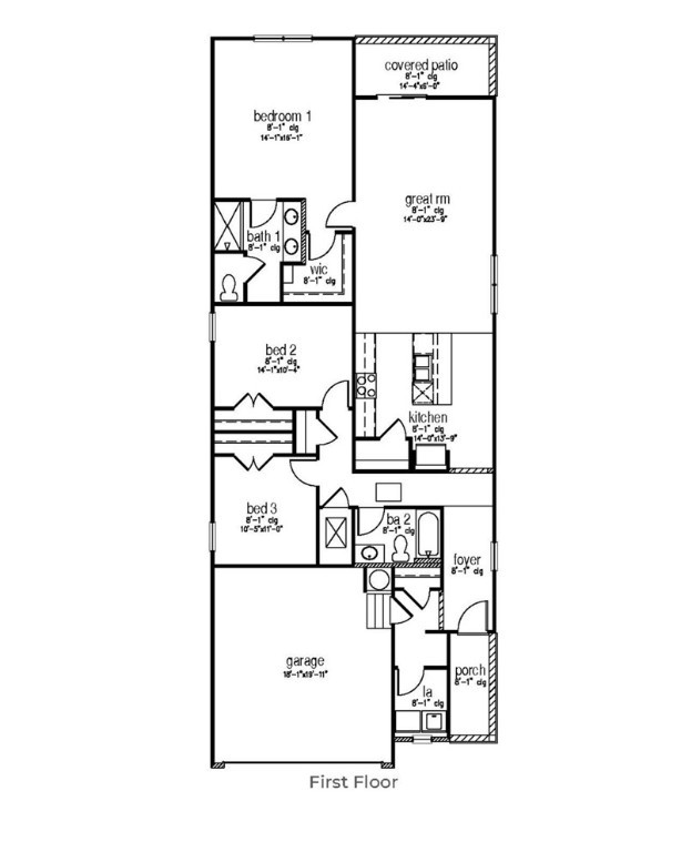
Quick Move-In! Ready NOW! POPULAR Ranch! Corner Lot! Great separation of the primary suite and secondary bedrooms! Welcome to Rice Hope- Resort Style Amenity Rich Port Wentworth Subdivision!! The Glenwood Plan is a Fabulous 3 Bedroom 2 Full Bath Ranch Home! Boasting an Open Floorplan, the HUB of the home is a Large Kitchen with Ample Cabinetry & Center Island complete with Pantry & Stainless-Steel Appliances! Spacious Family Room Perfect for Entertaining! Primary Suite with Huge Walk-In Closet & Double Vanity Bathroom with Walk-In Shower & Separate Water Closet! 2 Secondary Bedrooms are located off the Entry Foyer & are serviced by a Full Hall Bath! Laundry Room conveniently located off entry from 2 car garage! Covered back patio Perfect for Outdoor Living! Smart Home Technology & 2” Faux Wood Blinds Included! Pictures, photographs, colors, features, and sizes are for illustration purposes only & will vary from the homes as built. Home is under construction. ***Ask how to receive up to $8,500 towards closing cost w/ use of preferred lender and attorney!***

Property Details

Property Type Residential
Property Sub Type Single Family Residence
Status Active
List Price $339,990
List Date May 27, 2025
Lot Size 0.15 acres
Property ID SA331819

Interested in this property?

Property Location

Port Wentworth, GA 31407