Property at 1027 Lakes Boulevard
Residential
Active
1 / 6

1027 Lakes Boulevard

Brunswick, GA 31525

$352,990
$187.16/sq ft
ID# SA339880
4 Bedrooms
1,886 sq ft
Built 2025

Property Description

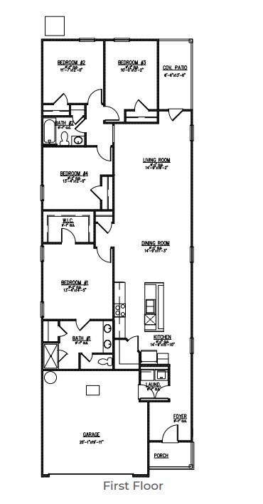
Welcome to The Lakes at North Glynn in Brunswick, Georgia! Ideally located near I-95 and Brunswick’s shops, dining, and beaches, this lakeside community offers easy access to coastal living with a planned swimming pool, clubhouse, and open-air pavilion for residents to enjoy. Sidewalks throughout the neighborhood make it easy to walk to nearby schools and the North Glynn Recreation Complex just across the street—featuring ball fields, tennis and pickleball courts, a dog park, skate park, fishing lake, and scenic walking trails. The Hemingway is a 1,886 sq. ft., single-story ranch home with 3 bedrooms, 2 baths, a 2-car garage, and the primary suite on the main level. This open-concept design features a spacious Great Room and a modern kitchen with a quartz island, 42-inch cabinets, stainless Whirlpool appliances, and a walk-in pantry. The private primary suite offers a large walk-in closet and dual-sink vanity, while a covered rear patio provides the perfect outdoor living space. Additional highlights include 9-foot ceilings, LVP plank flooring, a Smart Home system, 2-inch faux wood blinds, fully sodded yards with irrigation, and a garage door opener. Home is under construction. Pictures, photographs, colors, features, and sizes are for illustration purposes only and will vary from the home as built. Photos are not of the subject home. More information on programs and options are available for this home.

Property Details

Property Type Residential
Property Sub Type Single Family Residence
Status Active
List Price $352,990
List Date September 15, 2025
Lot Size 0.15 acres
Property ID SA339880

Interested in this property?

Property Location

Brunswick, GA 31525