Property at 278 Deer Meadow Way
Residential
Active
1 / 16

278 Deer Meadow Way

Allenhurst, GA 31301

$305,875
$142.20/sq ft
ID# SA331198
5 Bedrooms
2,151 sq ft
Built 2025

Property Description

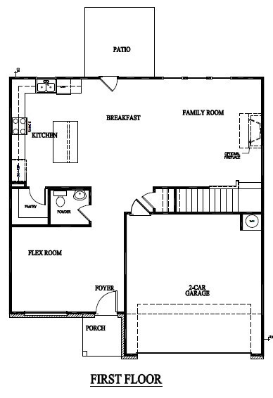
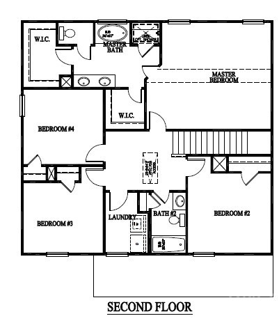
The Palmyra floor plan in Tibet Road at Sassafras is a homebuyer favorite! This 5-bed, 3-bath home features a foyer leading to your downstairs fifth bedroom and full bathroom. The spacious family room with electric fireplace flows into the breakfast area and U-shaped kitchen, complete with an island, stylish cabinets, and stainless steel appliances. Upstairs, the master suite offers two walk-in closets, a dual vanity, garden tub, separate shower, and lots of natural light. Three additional bedrooms share a full hall bath. Enjoy your large 0.77 acre backyard perfect for chill vibes and BBQ nights. Artistic renderings are for illustration only; actual plans and features may vary.

Property Details

Property Type Residential
Property Sub Type Single Family Residence
Status Active
List Price $305,875
List Date May 16, 2025
Lot Size 0.77 acres
Property ID SA331198

Interested in this property?

Property Location

Allenhurst, GA 31301